Immobilienmakler Objekt
Immobilienmakler Objekt
Objekt ID : 57148

Bedburg-Hau: Barrierearme Gewerbefläche - ideal für Praxis, Therapie oder gemeinschaftliches Wohnen

Stadt : Bedburg-Hau
Baujahr : 1949




Show

Beschreibung

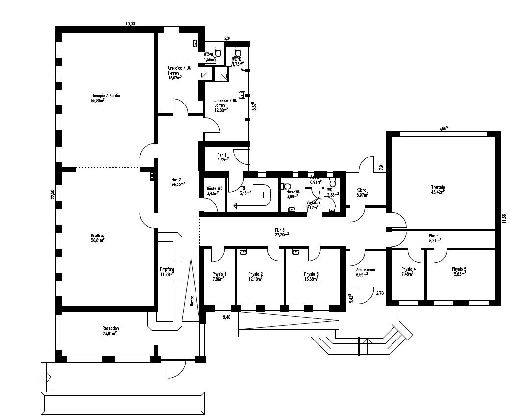
Qualburg: liegt verkehrsgünstig in der Nähe der B9 sowie unweit der A57 und bietet somit eine gute Anbindung in Richtung Kleve, Krefeld und die Niederlande. Die ruhige, aber strategisch gut erreichbare Lage macht den Standort besonders attraktiv. Grundstück: ca. 1.091 m² Baujahr: ca. 1949 Flächen: ca. 598 m² gesamt Erdgeschoss Gewerbefläche: ca. 372 m² Umbauter Raum: ca. 3.042 m³ Die Gewerbefläche wurde zuletzt als Rehasport genutzt. Für neue Mieter bieten sich auch weitere Optionen an, z. B. Physiotherapie, Arztpraxis, gemeinschaftliches Wohnen für Senioren oder für Menschen mit Behinderungen. Die Räume eignen sich ideal für diese Nutzungen dank der flexiblen Aufteilung, barrierearmen Zugängen, separatem WC-Bereich, Umkleideflächen und dem großzügigen Grundriss. Räume und Aufteilung: WC-Bereich: jeweils Damen- und Herren-WC Behinderten-WC Gäste-WC Räume: Zwei großzügige Kraft- und Kardioräume ggf. als Gemeinschafts- und Aufenthalsräume nutzbar 6 Therapieräume Umkleideräume für Damen und Herren Küche: Einbau-Teeküche Fenster: Holz- bzw. Kunststofffenster mit Isolierverglasung Heizung: Gaszentralheizung, Einbau ca. 2005 Außenbereich: 100 m² Außenbereich gehören zur Gewerbefläche. Zudem stehen ausreichend Parkplätze zur Verfügung. Miete: € 2.500,- zzgl. € 500,– für Betriebskosten und Heizung, seperat wird mit dem Anbieter Strom abgerechent 

Sonstiges

Übernahme: Nach Absprache mit dem Verkäufer Besichtigungen: Nur nach vorheriger Terminabsprache mit Rücksicht auf den Verkäufer. Terminabsprache unter: +49 2828 92199 (Büro Emmerich-Elten), +49 2824-965211 (Büro Kalkar), +49 2874 902572 (Büro Isselburg-Bocholt) Provision: Vom Verkäufer sowie Käufer sind mit Abschluss des Kaufvertrages eine Vermittlungs- bzw. Nachweisprovision vom Gesamtkaufpreis an die Rainer Elsmann Immobilien – Immobilienteam Niederrhein GmbH zu zahlen. Die Provisionshöhe entnehmen Sie bitte den Angaben in der Broschüre bzw. auf unserer Webseite. Hinweis: Sind mehrere Kaufinteressenten für die Immobilie vorhanden, wird der Verkäufer seine Verkaufsentscheidung treffen; gegebenenfalls kann es zu einem Bieterverfahren kommen. Der Makler wird die Entscheidungen den Kaufinteressenten übermitteln. Wir weisen daraufhin, dass den Kaufinteressenten keine Schadensersatzansprüche zustehen weder gegen den Verkäufer noch gegen den Makler. Deshalb Vorsicht bei Vorleistungen (z.B. Gutachterkosten) Allgemein: Sämtliche, in diesem Angebot enthaltenen Angaben, Zeichnungen, Abmessungen und Preisangaben beruhen auf Angaben des Verkäufers, oder eines Dritten. Die Benennungen der Räume/Zimmer beziehen sich auf die aktuelle Nutzung und ggf. nicht auf die baurechtlichen Genehmigungen. Insbesondere im Falle älterer, bewohnter oder umgebauter Immobilien kann letzten Endes nicht immer gewährleistet werden, dass der neueste Stand der Technik eingehalten ist und das Objekt daneben allen Anforderungen Stand hält. Der Makler übernimmt in der Folge keine Gewähr für die Richtigkeit der von ihm lediglich weitergegebenen Informationen zur Beschaffenheit der Immobilie und/oder deren uneingeschränkter Eignung zu einer vorgesehenen Nutzung. Soweit der Makler neben der eigenen Sorgfalt auch für eigene Auskünfte haftet, ist diese Haftung auf grobe Fahrlässigkeit oder vorsätzliches Handeln beschränkt. Es gelten die allgemeinen Geschäftsbedingungen. Übersetzungen: Die Übersetzungen auf unserer Webseite erfolgen automatisch mit Deepl. Informatie voor Nederlanders: Wij spreken Nederlands! Daarnaast begeleiden wij Nederlanders niet alleen bij de aankoop van een huis in Duitsland en alles wat daarbij komt kijken maar ook bij de emigratie naar Duitsland. Neem gewoon contact met ons op en laat u informeren!
Mehr lesen

Bausubstanz & Energieausweis

Flächenangaben

Fotos

Teilen Sie Ihre Wunschimmobilie

Interesse am Objekt?

Melden Sie sich kostenlos an und schicken Sie dem Anbieter noch heute Ihr Like!
Kostenlos

Kontaktanfrage an den Immobilienanbieter

Pflichtfelder sind mit einem Sternchen (*) gekennzeichnet.

Deine Nachricht wird von immo2find.de zum Schutz vor verbotenen Aktivitäten vor der Weiterleitung an den Immobilienanbieter geprüft.

Finanzierungsangebot direkt anfragen?

Dr. Klein - Die Partner für Ihre Finanzen

Klasse, dass Sie sich zur Finanzierung der Immobilie von unserem exklusiven Finanzierungspartner Dr. Klein beraten lassen möchten.

Damit Sie vom Anbieter der Immobilie und auch von unserem Finanzierungspartner Dr. Klein direkt erreicht werden können, klicken Sie bitte auf einen der beiden Button - Anmelden oder Registrieren!
Falls Fragen auftreten zögern Sie bitte nicht und kontaktieren Sie uns persönlich!

Kontaktanfrage an den Immobilienanbieter

Du bist bereits registriert?

Pflichtfelder sind mit einem Sternchen (*) gekennzeichnet.

Deine Nachricht wird von immo2find.de zum Schutz vor verbotenen Aktivitäten vor der Weiterleitung an den Immobilienanbieter geprüft.