Immobilienmakler Objekt
Immobilienmakler Objekt
Objekt ID : 57005

Niedermörmter: Verwirklichen Sie Ihren Traum vom Eigenheim

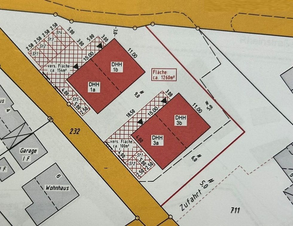
Grundstücksfläche : 1260 m²
Stadt : Kalkar




Show

Beschreibung

Willkommen in Niedermörmter – Baugrundstück in idyllischer Lage Inmitten der reizvollen niederrheinischen Landschaft, im charmanten Ortsteil Niedermörmter der Stadt Kalkar, erwartet Sie dieses attraktive Grundstück mit vielfältigen Möglichkeiten. Umgeben von Natur, Ruhe und ländlichem Flair bietet es die ideale Basis für Ihr zukünftiges Zuhause oder ein individuelles Bauprojekt. Die ruhige Lage in einer gewachsenen Wohngegend vereint naturnahes Wohnen mit guter Anbindung an die umliegenden Städte wie Kalkar, Xanten und Rees. Ob als Kapitalanlage oder zur Realisierung Ihres Wohntraums – dieses Grundstück bietet Ihnen eine hervorragende Gelegenheit in einer der schönsten Regionen des Niederrheins. Grundstücksgröße: ca. 1.260 m² (noch zu vermessen) Bebaubare Fläche: ca. 330 m² Grundfläche zzgl. ca. 250 m² Garagenfläche Sie erwerben das Grundstück ohne Bindung an einen Architekten, Projektentwickler oder Bauunternehmer. Gerne begleiten wir Sie bei der Planung und Umsetzung Ihrer Traumimmobilie – gemeinsam mit unseren erfahrenen Partnern. Wir freuen uns auf Ihre Kontaktaufnahme! Laut Anfrage beim zuständigen Bauamt ist die Bebauung mit vier Doppelhaushälften inklusive Stellplätzen möglich. Alternativ besteht die Option, das Grundstück zu teilen und jeweils zwei Doppelhaushälften zu errichten. Kaufpreis: € 139.000,–  

Sonstiges

Übernahme: Nach Absprache mit dem Verkäufer Besichtigungen: Nur nach vorheriger Terminabsprache mit Rücksicht auf den Verkäufer. Terminabsprache unter: +49 2828 92199 (Büro Emmerich-Elten), +49 2824-965211 (Büro Kalkar), +49 2874 902572 (Büro Isselburg-Bocholt) Provision: Vom Verkäufer sowie Käufer sind mit Abschluss des Kaufvertrages eine Vermittlungs- bzw. Nachweisprovision vom Gesamtkaufpreis an die Rainer Elsmann Immobilien – Immobilienteam Niederrhein GmbH zu zahlen. Die Provisionshöhe entnehmen Sie bitte den Angaben in der Broschüre bzw. auf unserer Webseite. Hinweis: Sind mehrere Kaufinteressenten für die Immobilie vorhanden, wird der Verkäufer seine Verkaufsentscheidung treffen; gegebenenfalls kann es zu einem Bieterverfahren kommen. Der Makler wird die Entscheidungen den Kaufinteressenten übermitteln. Wir weisen daraufhin, dass den Kaufinteressenten keine Schadensersatzansprüche zustehen weder gegen den Verkäufer noch gegen den Makler. Deshalb Vorsicht bei Vorleistungen (z.B. Gutachterkosten) Allgemein: Sämtliche, in diesem Angebot enthaltenen Angaben, Zeichnungen, Abmessungen und Preisangaben beruhen auf Angaben des Verkäufers, oder eines Dritten. Die Benennungen der Räume/Zimmer beziehen sich auf die aktuelle Nutzung und ggf. nicht auf die baurechtlichen Genehmigungen. Insbesondere im Falle älterer, bewohnter oder umgebauter Immobilien kann letzten Endes nicht immer gewährleistet werden, dass der neueste Stand der Technik eingehalten ist und das Objekt daneben allen Anforderungen Stand hält. Der Makler übernimmt in der Folge keine Gewähr für die Richtigkeit der von ihm lediglich weitergegebenen Informationen zur Beschaffenheit der Immobilie und/oder deren uneingeschränkter Eignung zu einer vorgesehenen Nutzung. Soweit der Makler neben der eigenen Sorgfalt auch für eigene Auskünfte haftet, ist diese Haftung auf grobe Fahrlässigkeit oder vorsätzliches Handeln beschränkt. Es gelten die allgemeinen Geschäftsbedingungen. Übersetzungen: Die Übersetzungen auf unserer Webseite erfolgen automatisch mit Deepl. Informatie voor Nederlanders: Wij spreken Nederlands! Daarnaast begeleiden wij Nederlanders niet alleen bij de aankoop van een huis in Duitsland en alles wat daarbij komt kijken maar ook bij de emigratie naar Duitsland. Neem gewoon contact met ons op en laat u informeren!   . Info zum Energieausweis: nicht erforderlich (z. Bsp. Grundstück, Denkmal,…)
Mehr lesen

Bausubstanz & Energieausweis

Flächenangaben

Fotos

Teilen Sie Ihre Wunschimmobilie

Interesse am Objekt?

Melden Sie sich kostenlos an und schicken Sie dem Anbieter noch heute Ihr Like!
Kostenlos

Kontaktanfrage an den Immobilienanbieter

Pflichtfelder sind mit einem Sternchen (*) gekennzeichnet.

Deine Nachricht wird von immo2find.de zum Schutz vor verbotenen Aktivitäten vor der Weiterleitung an den Immobilienanbieter geprüft.

Finanzierungsangebot direkt anfragen?

Dr. Klein - Die Partner für Ihre Finanzen

Klasse, dass Sie sich zur Finanzierung der Immobilie von unserem exklusiven Finanzierungspartner Dr. Klein beraten lassen möchten.

Damit Sie vom Anbieter der Immobilie und auch von unserem Finanzierungspartner Dr. Klein direkt erreicht werden können, klicken Sie bitte auf einen der beiden Button - Anmelden oder Registrieren!
Falls Fragen auftreten zögern Sie bitte nicht und kontaktieren Sie uns persönlich!

Kontaktanfrage an den Immobilienanbieter

Du bist bereits registriert?

Pflichtfelder sind mit einem Sternchen (*) gekennzeichnet.

Deine Nachricht wird von immo2find.de zum Schutz vor verbotenen Aktivitäten vor der Weiterleitung an den Immobilienanbieter geprüft.